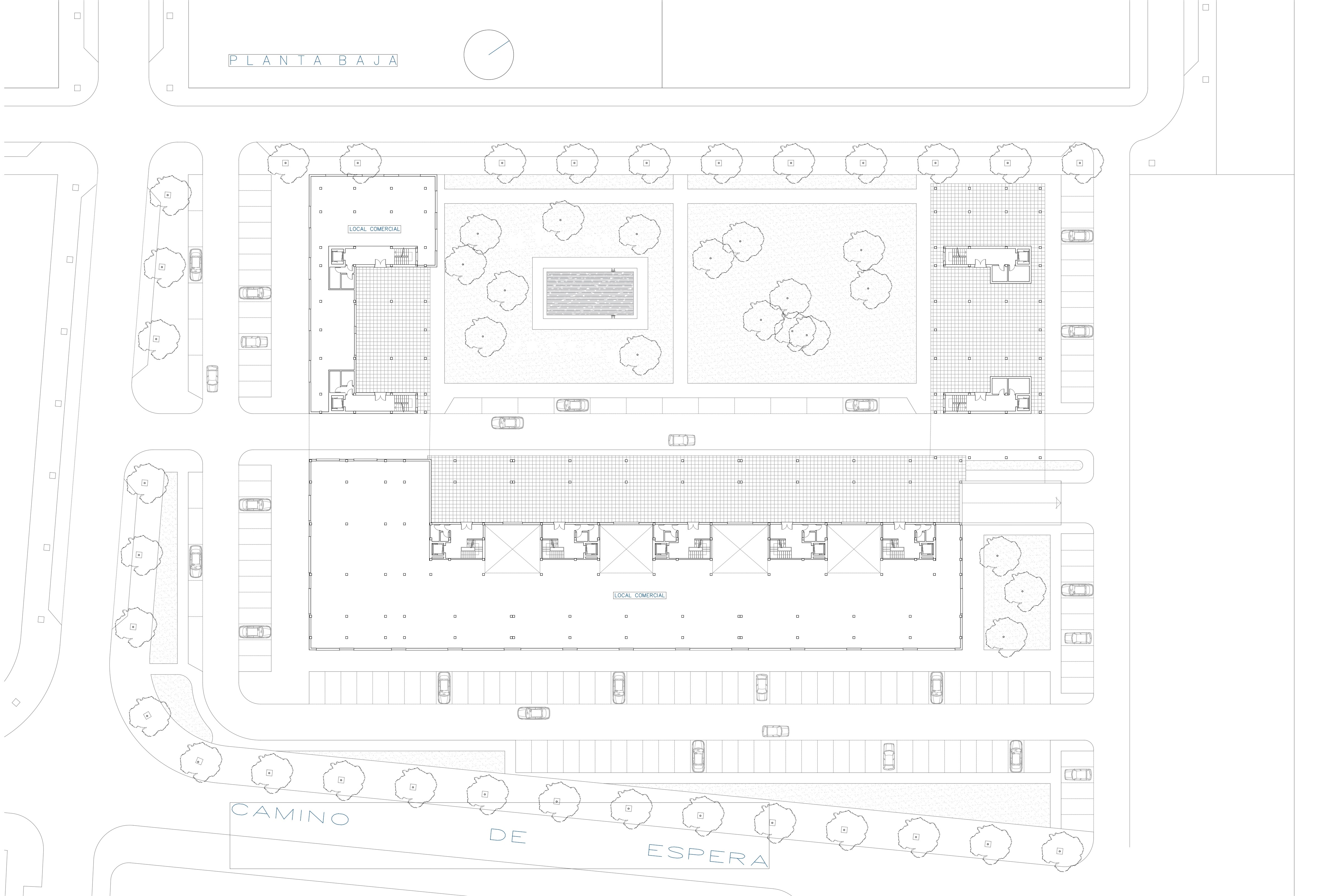
160 VIVIENDAS, Jerez de la Frontera

Promoción de viviendas en el pjerteol feakvmskmdvkdsfmvdskflmvdlfvmdsflñmvñldsfv,mdñls

fvmsdñlfv,msdlf+v,èlç,rvèñç.cñèçfkg,poetmbkrem bkr,b d,ñfv´l+dfmbpkrtmbkprt bk,dgf bl+permbtlr+pemb, rel+ñmb d,lfñ b,dl+e